Sold

5A Arundel St, Benalla

SOLD

4 2 4 720 m2

THE FEELING OF HOLIDAYS EVERYDAY!

Holiday dreaming! Enjoy the peace with French doors opening to the bird life outside and lake views!

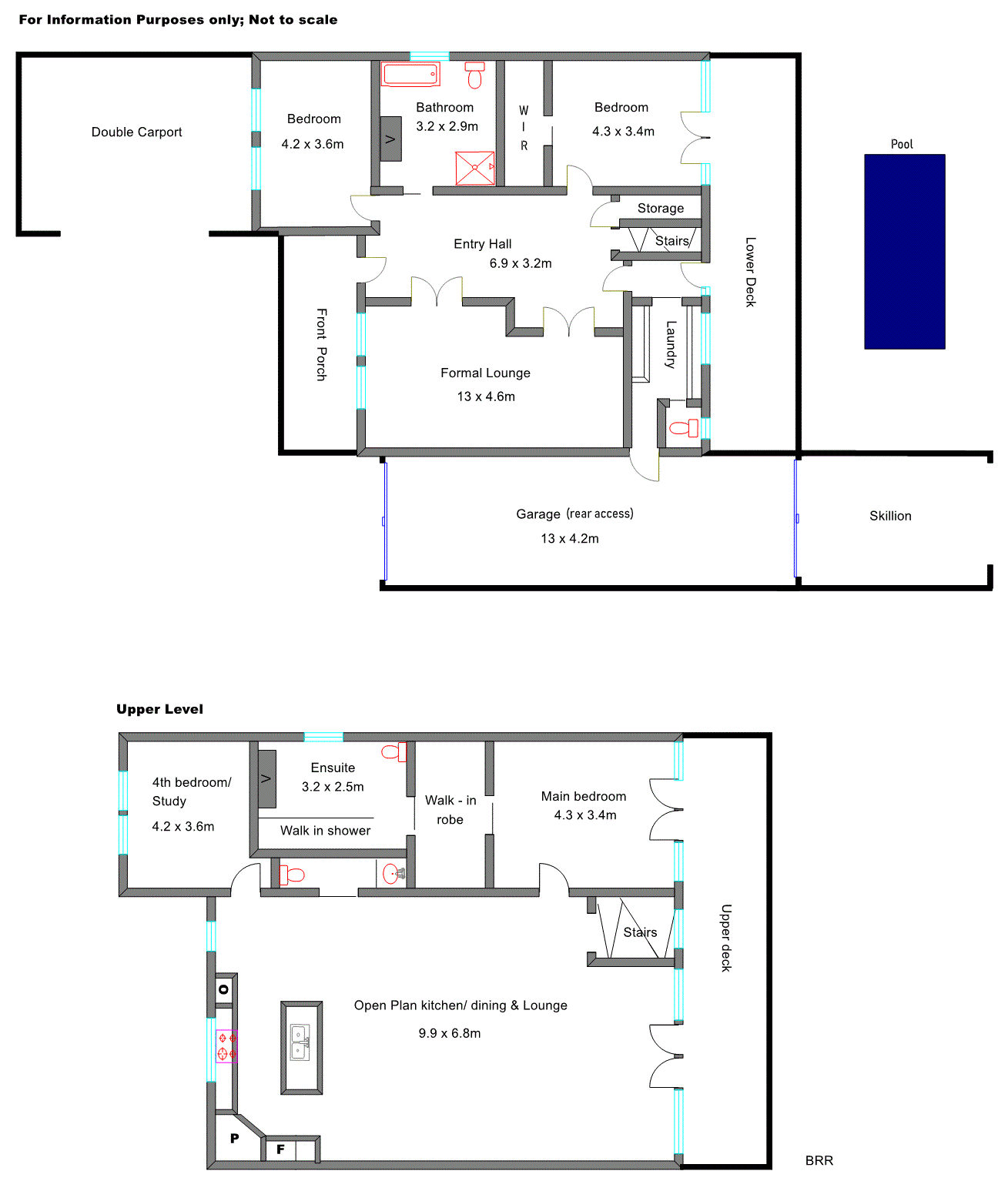
Featuring -

- A wide entry hall with the warmth of Tallowwood flooring.

- Formal lounge with plantation shutters, timber French doors and quality soft furnishings.

- Four generous bedrooms or three and a study, main bedroom with lake views and French doors to an upper deck.

- Ground floor bedrooms share a spacious central bathroom with quality tiling, a floating vanity, large bath and shower.

- Open plan kitchen, dining and family room with Tallowwood flooring, French doors to the upper deck and lakeviews.

- Ducted gas heating, evap. cooling, s/system heating/cooling, ducted vacuum, double garage, skillion, double carport & inground swimming pool.

 

 

 

 

The particulars contained herein are supplied for information only and shall not be taken as a representation in any respect on the part of the vendor or the agent. Interested parties should contact the nominated person for full and current details.

4 2 4 720 m2

Details

Address 5A Arundel St, Benalla
Price SOLD
Property Type Residential
Property ID 926
Category House
Land Area 720 m2

Tools

Share This Property