Sold

35 Olivers Road, Benalla

SOLD

4 2 4

IN MINT CONDITION INSIDE & OUT!

Here exists the most immaculate home with many improvements, it is so well maintained...seeing is believing.
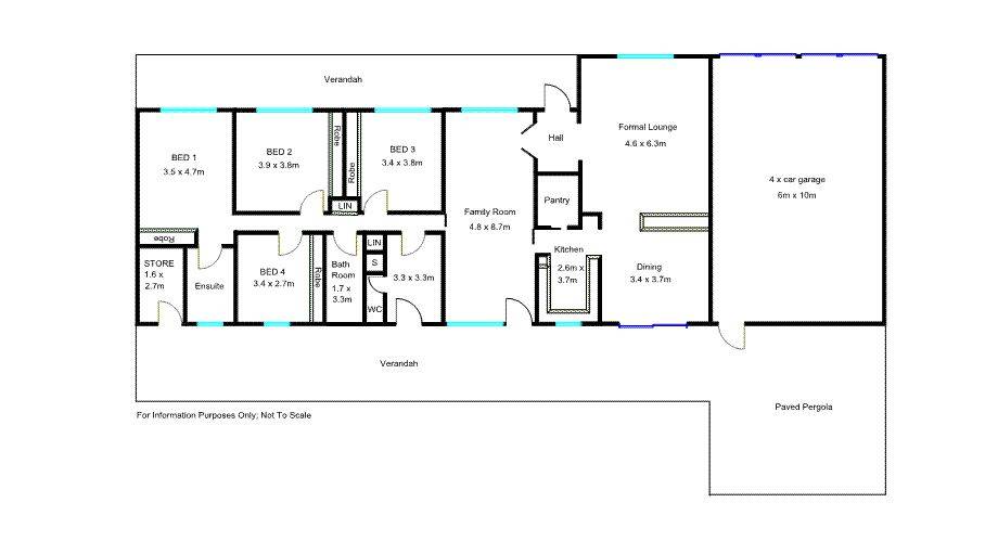
Informal and formal living areas, kitchen & meals leading out to the most superb & spacious outdoor entertainment area.
All bedrooms are generous with ample robe storage, c/ fans and main bedroom featuring an ensuite.
The kitchen boasts brilliant bench space, elect. cooking, a d/washer & huge walk in pantry/larder.
Seasonal comforts inc. ducted gas heating throughout & 2 air conditioners.
Situated on a 4142m2 allotment ( 1 acre) the space is wonderful and so is the shedding...
6m x 9.5m with attached 4m x 9m skillion (brilliant for caravan storage). The home also consists of a whopping 4 x car remote l/up garage.
Town water, mains gas & sewerage, not a worry in the world.
4 2 4

Details

Address 35 Olivers Road, Benalla
Price SOLD
Property Type Residential
Property ID 642
Category House

Tools

Share This Property